Ondergrondse fietsenstalling op onmogelijke plek
Op een van de drukste plekken van Amsterdam, direct naast het Leidseplein, gaat eind mei 2021 een nieuwe ondergrondse fietsenstalling open. De bouw ervan was een forse uitdaging, zowel logistiek als constructief. Het piepkleine bouwterrein lag ingeklemd tussen bomvolle terrassen, kwetsbare bebouwing en een drukke trambaan. Bovendien moest rekening worden gehouden met een duiker en tal van funderingsresten in de ondergrond.
De bouw van de fietsenstalling vloeit voort uit het beleid van de gemeente Amsterdam om straten en pleinen zoveel mogelijk vrij te houden van gestalde fietsen. Mensen mogen hun fiets niet meer overal neerzetten en daarom creëert de gemeente op allerlei plekken nieuwe fietsparkeergelegenheden, bij voorkeur onder de grond. Een voorbeeld is de nieuwe stalling onder het driehoekige Kleine-Gartmanplantsoen, dat grenst aan het Leidseplein.
Waarom hier?
“Nadat ik gevraagd was om mee te werken aan een referentieontwerp, heb ik me regelmatig afgevraagd waarom de gemeente juist op deze plek een stalling wilde”, vertelt constructeur Ally Altman van het ingenieursbureau van de gemeente Amsterdam. “Het Kleine-Gartmanplantsoen ligt pal naast drukke horecaterrassen en allerlei schadegevoelige monumentale gebouwen. Bovendien zat er onder het plantsoen een duiker met een lengte van ongeveer tweehonderd meter, waar het water in de Lijnbaansgracht doorheen liep tussen de Leidsekruisstraat en de Melkweg. In eerste instantie moest deze waterverbinding van Waternet, de waterbeheerder, gehandhaafd blijven vanwege de waterkwaliteit in de gracht. Daarom hebben we onderzocht of een sifonduiker onder de stalling een optie was. In principe was dat mogelijk, maar het risico op schade aan de omgeving nam dan fors toe, omdat er aanzienlijk dieper zou moeten worden ontgraven. Vervolgens hebben we een minder risicovolle oplossing gezocht en samen met advies- en ingenieursbureau Tauw de mogelijkheid van een persleiding naast de stalling bekeken. Ook dat idee ging niet door. Voor een persleiding zou ook een complexe pompkelder moeten worden gebouwd en in de drukke ondergrond bleek dat zeer lastig te zijn.”
“Uiteindelijk is besloten om de waterverbinding ter hoogte van de geplande fietsenstalling op te heffen en hebben we een referentieontwerp gemaakt zonder een dergelijke verbinding. Aan dat besluit is een lange periode van overleg met waterbeheerder Waternet voorafgegaan. Waternet ging er namelijk lang vanuit dat een waterverbinding met stromend water nodig was voor het behouden van de waterkwaliteit. Pas nadat bleek dat de waterkwaliteit ook op peil blijft met een lokale maatregel bij de Melkweg, ging Waternet akkoord met het opheffen van de verbinding.”
Het Kleine-Gartmanplantsoen is bekend om het kunstwerk Blauw Jan, een groep van veertig levensechte bronzen reptielen die hier sinds 1994 in het gras, tussen de struiken en op een bakstenen verhoging stonden. Het kunstwerk, ontworpen door Hans van Houwelingen, is tijdens de bouw tijdelijk verwijderd en komt in een aangepaste vorm terug. De naam Blauw Jan verwijst naar een herberg die in de zeven- en achttiende eeuw op de Kloveniersburgwal om de hoek was gevestigd en een binnenplaats had met een dierentuin waarin onder andere leeuwen, emoes, tropische vogels en reptielen te zien waren.
Gepuzzel
Altman vervolgt: “Na afronding van het referentieontwerp en het opstellen van de uitvraag, is het project als design-en-construct-opdracht aanbesteed. Hoewel veel al vast lag – denk aan de aanlegdiepte van het dek, de minimale hoogte van de stalling, de locatie van de stijgpunten en de inrichting van het maaiveld – is besloten om het referentieontwerp niet mee te geven bij de uitvraag. Op basis van de eisen en een aantal tekeningen van de entrees konden we marktpartijen goed duidelijk maken wat we wilden. De weg daarnaartoe – de bouwmethode – is geheel vrij gelaten om de kracht van de markt te benutten. Verder hebben we belangstellende partijen via EMVI-criteria gestimuleerd om met slimme oplossingen te komen voor het minimaliseren van omgevingshinder en schade aan omliggende bebouwing en het zo snel mogelijk weer beschikbaar stellen van het maaiveld. Op basis van de criteria is gekozen voor het ontwerp van Ballast Nedam, dat constructief ook het meest robuust was.”
“Het maken van een goed en maakbaar ontwerp was een enorm gepuzzel”, stelt Dennis Woudenberg van Royal HaskoningDHV, die door Ballast Nedam is ingeschakeld als constructief ontwerper. “Immers, we moesten met zo min mogelijk hinder voor de omgeving bouwen op een heel klein bouwterrein, pal naast terrassen en kwetsbare bebouwing en rekening houden met allerlei rommel in de ondergrond. Om de overlast te minimaliseren, hebben we gekozen voor de wanden-dakmethode. Eerst hebben we de wanden van de bouwkuip en de palen voor de kolommen in de fietsenstalling gemaakt en vervolgens hebben we het dak gestort. Het storten hebben we in twee stappen gedaan. Zodra het kon, hebben we het deel gemaakt dat direct tegen de terrassen aanligt. Daardoor kon het maaiveld hier gelijk weer worden ingericht en bleef de hinder beperkt. Nadat het hele dak gereed was, zijn we de grond eronder gaan ontgraven en hebben we de rest van de stalling gebouwd.”
‘Zodra het kon, hebben we het deel gemaakt dat direct tegen de terrassen aanligt. Daardoor kon het maaiveld hier gelijk weer worden ingericht.’
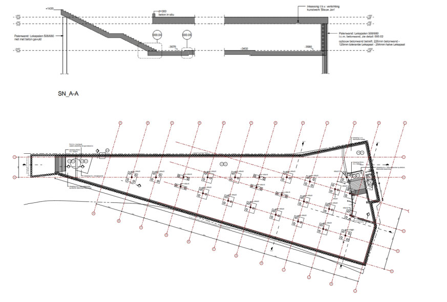
Palenwanden
“Voor de wanden hebben we in nauw overleg met funderingsbedrijf Van Leeuwen zogeheten Leka-palen toegepast. Deze buispalen worden borend aangebracht en hebben de prettige eigenschap dat ze ook door metselwerk en hout gaan. Bovendien vergen ze geen grote boorstelling. Om er zeker van te zijn dat ze ook op deze locatie – met veel puin en resten van oude kades in de ondergrond – zouden voldoen, hebben we overigens een paar proefboringen gedaan. Nadat deze goed waren verlopen, hebben we de palenwanden gemaakt tot een diepte van ruim zeventien meter beneden NAP. Waar de wanden de duiker kruisen, hebben we eerst gaten in het dak van de duiker geboord. Ook hebben we de duiker op deze plekken vooraf opgevuld met een vulmiddel.”
“Aangezien we met de Leka-palen geen waterdichte wand konden krijgen – immers, je kunt de buispalen niet strak tegen elkaar aan plaatsen – hebben we als afdichting tussen de palen groutpalen gemaakt. Daarbij zijn we ervan uitgegaan dat we bij eventuele lekkage altijd nog staalplaten op de buispalen zouden kunnen lassen. Dat bleek achteraf inderdaad nodig te zijn. Voor de definitieve afsluiting hebben we overigens nog een betonwand voor de palenwand geplaatst”, licht Woudenberg toe.
Gekraakt
“Ook voor de kolommen en poeren hebben we Leka-palen vanaf maaiveld gemaakt. Daarbij hebben we steeds rond de paal die uiteindelijk als kolom gaat dienen twee, drie of vier extra palen aangebracht, afhankelijk van de locatie. Die extra palen gebruiken we als fundering van de poeren voor de kolom, en in de tijdelijke fase dienden ze om het dek te dragen. Toen we alle grond hadden ontgraven tot de onderkant van de beoogde vloer, hebben we kransen gemaakt die de krachten van de ‘kolompalen’ afdragen naar de ‘poerpalen’. Het maken van de wapening van de poeren was lastig, omdat het wapeningsstaal rondom de palen moest worden aangebracht. Daarom hebben we alle wapening in 3D ontworpen. Na het storten van de poeren hebben we het bovenste deel van deze ‘poerpalen’, tussen het dak en de vloer van de stalling, verwijderd. Daarvoor hebben we aan de onderkant van de buis een deel van het staal eraf geslepen en vervolgens het beton gekraakt, zodat we de rest van de paal weg konden halen. Daarna hebben we de vloer gestort.”
“Vanzelfsprekend waren er nog tal van andere vraagstukken die we moesten oplossen” vervolgt Woudenberg. “Het dak van de stalling hebben we bijvoorbeeld tijdens de bouw gebruikt als bouwterrein en voor de opslag van materialen. We hebben dan ook steeds berekend of het daar sterk genoeg voor was en of het ook de last van een zware kraan en overig materieel aan kon. Ook hebben we goed nagedacht over de manier waarop we ongelijke verzakkingen van de trambaan konden voorkomen. Verder hebben we veel aandacht besteed aan zwerfstroom. We wisten namelijk dat zwerfstroom veel voorkomt bij trambanen. Aan de kant van de Weteringschans zou dit kunnen leiden tot ongewenste corrosie van de palenwand. Daarnaast hebben we een uitgebreid logistiek plan gemaakt met een wachtplaats buiten de stad voor het aan- en afvoeren van materialen. In het gebied mag namelijk alleen tussen 7.00 en 12.00 uur met zware vrachtwagens worden gereden. Alleen voor de betonstorts konden uitzonderingen worden gemaakt. En vanwege het ontbreken van parkeermogelijkheden zijn zoveel mogelijk mensen met het openbaar vervoer of de fiets naar de bouwplaats gekomen.”
Feest
Altman kijkt tevreden terug op het project en de samenwerking met de aannemer: “Voor de gemeente als opdrachtgever, die bewust de inhoudelijke expertise van het eigen ingenieursbureau inzet, is het fijn als je een deskundige partij als gesprekspartner hebt. De aannemer heeft diverse oplossingen gekozen die niet standaard zijn. Dan is het heel belangrijk dat je tijdens ontwerpsessies met elkaar in dialoog kunt gaan om tot een zo goed mogelijk ontwerp te komen en steeds samen kunt bespreken wat de aandachtspunten voor de volgende fase zijn. En omdat bij dit project de ontwerpende partij ook de uitvoerende partij is, is de garantie groot dat het ontwerp ook maakbaar is. Los daarvan is de stalling echt mooi geworden, waarbij alles ook nog eens volgens de criteria is gerealiseerd.”
Ook Woudenberg is positief: “Voor mij als constructeur is het een feest om aan dit soort projecten vol constructieve puzzels te mogen werken. Zeker als de samenwerking met de opdrachtgever ook nog eens fijn is.”




